Hoạt động trên biển luôn tiềm ẩn nhiều thách thức, đòi hỏi các thiết bị phải có độ bền và hiệu suất vượt trội. Đối với ngành đánh bắt, logistics hay xây dựng cảng biển, việc bốc dỡ hàng hóa nặng một cách nhanh chóng, an toàn là yếu tố sống còn, quyết định trực tiếp đến hiệu quả kinh tế. Bạn đang tìm kiếm một giải pháp cẩu hàng hải 8 tấn mạnh mẽ, có khả năng chống chọi với sự ăn mòn của nước biển và hoạt động ổn định trong mọi điều kiện? Cẩu hàng hải 8 tấn Hyundai HLC-8016, sản phẩm từ thương hiệu hàng đầu Hàn Quốc, chính là câu trả lời toàn diện, được thiết kế chuyên biệt để đáp ứng những yêu cầu khắt khe nhất của môi trường biển.
Hyundai HLC-8016 là dòng cẩu thủy lực gập 6 khúc chuyên dụng cho môi trường hàng hải (ocean cranes), được sản xuất bởi Hyundai Everdigm - một tên tuổi lớn trong ngành thiết bị nặng toàn cầu. Với tải trọng nâng tối đa 8 tấn tại tầm với 2 mét và bán kính làm việc lên đến 19.8 mét, HLC-8016 mang đến khả năng làm việc linh hoạt, mạnh mẽ, là trợ thủ đắc lực cho các hoạt động trên tàu cá, tàu dịch vụ, sà lan và tại các cảng biển, cảng sông.
Được thiết kế để vận hành bền bỉ, cẩu HLC-8016 không chỉ là một thiết bị nâng hạ mà còn là một khoản đầu tư chiến lược, giúp tối ưu hóa năng suất lao động, giảm thiểu thời gian bốc dỡ và đảm bảo an toàn tối đa cho người và hàng hóa.
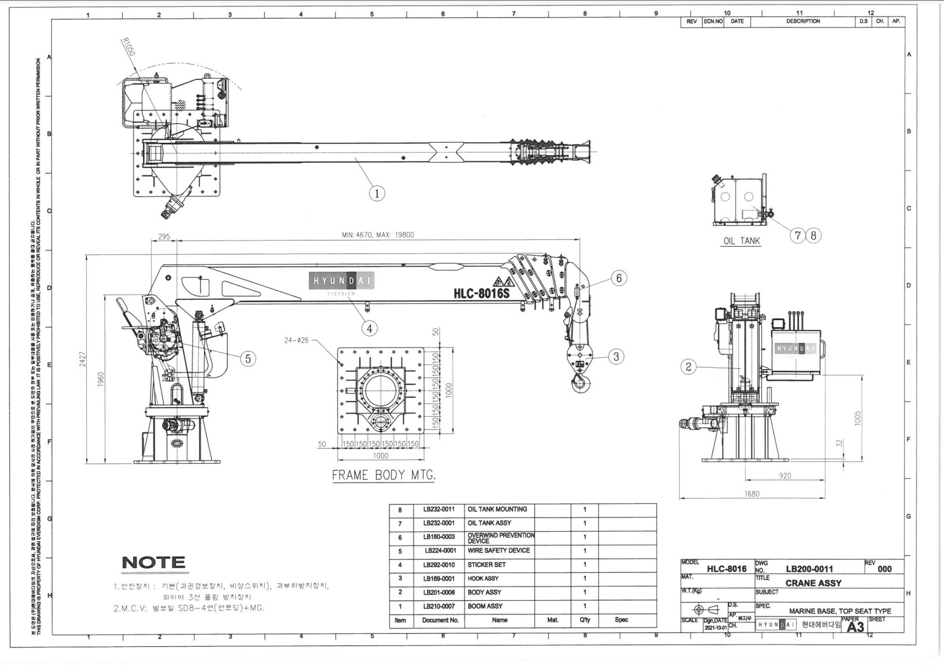
Để đánh giá chính xác năng lực của cẩu, việc nắm rõ các thông số kỹ thuật là vô cùng quan trọng. Dưới đây là bảng thông số chi tiết của cẩu hàng hải Hyundai HLC-8016 do nhà sản xuất cung cấp.
| Bảng thông số kỹ thuật HYUNDAI EVERDIGM HLC-8016 (phiên bản hàng hải) | |
|---|---|
| Hạng mục | Giá trị / Thông số |
| Năng suất làm việc | |
| Tải trọng nâng định mức | 8000 kg tại tầm với 2 m |
| Chiều cao nâng lớn nhất | 22 m |
| Chiều cao làm việc lớn nhất | 23,3 m |
| Bán kính làm việc lớn nhất | 19,8 m |
| Tải tại các bước vươn cần | |
| Cần 1 (1st boom) | 4225 kg tại tầm với 4,7 m |
| Cần 2 (2nd boom) | 2275 kg tại tầm với 7,7 m |
| Cần 3 (3rd boom) | 1425 kg tại tầm với 10,7 m |
| Cần 4 (4th boom) | 1075 kg tại tầm với 13,7 m |
| Cần 5 (5th boom) | 805 kg tại tầm với 16,8 m |
| Cần 6 (6th boom) | 630 kg tại tầm với 19,8 m |
Từ bảng thông số, có thể thấy rõ khả năng làm việc ấn tượng của HLC-8016. Tại khoảng cách gần, cẩu phát huy sức mạnh tối đa 8 tấn, phù hợp cho việc nâng các khối hàng lớn, nặng. Khi vươn xa hết tầm 19.8 mét, cẩu vẫn đảm bảo sức nâng 630 kg, lý tưởng cho các công việc đòi hỏi độ chính xác và tầm với xa như đưa lưới, thiết bị ra khỏi tàu hoặc vận chuyển hàng hóa giữa các phương tiện.
Sự phân bổ tải trọng hợp lý qua 6 đoạn cần giúp cẩu vận hành ổn định, an toàn và tối ưu hóa hiệu suất làm việc trong nhiều tình huống khác nhau.
Không chỉ sở hữu thông số ấn tượng, cẩu biển HLC-8016 còn được tích hợp nhiều công nghệ và thiết kế ưu việt.

Toàn bộ kết cấu thép của cẩu được xử lý bề mặt và sơn phủ nhiều lớp bằng sơn epoxy hàng hải chuyên dụng, có khả năng chống ăn mòn từ muối biển và điều kiện thời tiết khắc nghiệt. Các chi tiết quan trọng như ty ben, trục xoay được mạ crom cứng để tăng độ bền và chống gỉ sét, đảm bảo tuổi thọ thiết bị lâu dài.
Hệ thống thủy lực mạnh mẽ, đáp ứng nhanh và chính xác mọi thao tác của người vận hành. Cơ cấu cần gập 6 khúc cho phép cẩu vươn xa, làm việc ở nhiều vị trí phức tạp và dễ dàng thu gọn khi không sử dụng, tiết kiệm không gian trên boong tàu. So với các dòng cẩu tự hành 5 tấn Hyundai lắp trên xe tải, phiên bản hàng hải này được gia cố để chịu tải và rung lắc tốt hơn nhiều.
Hyundai HLC-8016 được trang bị đầy đủ các hệ thống an toàn tiêu chuẩn như: van cân bằng, van chống tụt, hệ thống cảnh báo quá tải (tùy chọn), và khóa an toàn cho móc cẩu. Những tính năng này đảm bảo an toàn tuyệt đối cho người vận hành, tàu thuyền và hàng hóa trong suốt quá trình làm việc.
Thiết kế của cẩu HLC-8016 tối ưu cho việc bảo trì, bảo dưỡng. Các điểm tra mỡ, kiểm tra dầu thủy lực được bố trí ở vị trí thuận tiện. Phụ tùng chính hãng Hyundai Everdigm luôn sẵn có, giúp giảm thiểu thời gian dừng máy và chi phí vận hành.
Với khả năng làm việc vượt trội, cẩu HLC-8016 được ứng dụng rộng rãi trong nhiều lĩnh vực:
Minh Hải Auto cam kết mang đến cho khách hàng sản phẩm cẩu hàng hải Hyundai HLC-8016 chính hãng với mức giá cạnh tranh nhất thị trường cùng những chính sách hỗ trợ vượt trội, giúp quý khách tối ưu hóa chi phí đầu tư.
Chúng tôi liên kết với nhiều ngân hàng uy tín, hỗ trợ khách hàng vay vốn lên đến 75% giá trị sản phẩm với thủ tục nhanh gọn.
Dù bạn ở bất kỳ tỉnh thành ven biển nào, chúng tôi đều có thể hỗ trợ vận chuyển và lắp đặt cẩu tận nơi.
Sản phẩm được bảo hành chính hãng 12 tháng theo tiêu chuẩn của Hyundai Everdigm toàn cầu.
Với nhiều năm kinh nghiệm trong lĩnh vực phân phối thiết bị nâng hạ, Minh Hải Auto tự hào là đối tác tin cậy của nhiều chủ tàu và doanh nghiệp trên cả nước. Chúng tôi không chỉ cung cấp sản phẩm mà còn mang đến giải pháp toàn diện từ tư vấn lựa chọn, thiết kế lắp đặt đến dịch vụ hậu mãi chuyên nghiệp. Ngoài dòng cẩu 8 tấn, chúng tôi còn cung cấp các model khác như Cẩu tự hành 6 tấn 6 khúc Hyundai HLC-7016, đáp ứng đa dạng nhu cầu của khách hàng.
Hoàn toàn phù hợp. HLC-8016 được thiết kế với lớp sơn hàng hải đặc biệt, các chi tiết mạ crom chống gỉ sét, lý tưởng cho môi trường biển. Sức nâng 8 tấn và tầm với gần 20m giúp nâng hạ ngư cụ, hải sản khối lượng lớn một cách dễ dàng.
Cẩu HLC-8016 có bán kính làm việc lớn nhất là 19.8 mét, tại đây cẩu có thể nâng được 630 kg. Ở tầm với gần nhất 2 mét, cẩu đạt tải trọng tối đa 8000 kg. Đây là thông số rất ấn tượng trong phân khúc.
Sản phẩm được trang bị nhiều lớp bảo vệ: sơn epoxy hàng hải chuyên dụng chống ăn mòn, các ty ben và trục chính được mạ crom cứng để chống lại tác động của muối biển, đảm bảo độ bền và tuổi thọ cao.
Giá cẩu hàng hải 8 tấn Hyundai HLC-8016 phụ thuộc vào thời điểm và các tùy chọn đi kèm. Để nhận báo giá chính xác và tốt nhất, vui lòng liên hệ trực tiếp Minh Hải Auto. Chúng tôi có chính sách hỗ trợ trả góp lên đến 75% giá trị sản phẩm.
Minh Hải Auto là nhà phân phối chính thức cẩu Hyundai Everdigm tại Việt Nam. Chúng tôi cam kết sản phẩm chính hãng, giá cả cạnh tranh, cùng chế độ bảo hành 12 tháng và dịch vụ hậu mãi chuyên nghiệp trên toàn quốc.
Bước 1: Truy cập website và lựa chọn sản phẩm cần mua để mua hàng
Bước 2: Click và sản phẩm muốn mua, màn hình hiển thị ra pop up với các lựa chọn sau
Nếu bạn muốn tiếp tục mua hàng: Bấm vào phần tiếp tục mua hàng để lựa chọn thêm sản phẩm vào giỏ hàng
Nếu bạn muốn xem giỏ hàng để cập nhật sản phẩm: Bấm vào xem giỏ hàng
Nếu bạn muốn đặt hàng và thanh toán cho sản phẩm này vui lòng bấm vào: Đặt hàng và thanh toán
Bước 3: Lựa chọn thông tin tài khoản thanh toán
Nếu bạn đã có tài khoản vui lòng nhập thông tin tên đăng nhập là email và mật khẩu vào mục đã có tài khoản trên hệ thống
Nếu bạn chưa có tài khoản và muốn đăng ký tài khoản vui lòng điền các thông tin cá nhân để tiếp tục đăng ký tài khoản. Khi có tài khoản bạn sẽ dễ dàng theo dõi được đơn hàng của mình
Nếu bạn muốn mua hàng mà không cần tài khoản vui lòng nhấp chuột vào mục đặt hàng không cần tài khoản
Bước 4: Điền các thông tin của bạn để nhận đơn hàng, lựa chọn hình thức thanh toán và vận chuyển cho đơn hàng của mình
Bước 5: Xem lại thông tin đặt hàng, điền chú thích và gửi đơn hàng
Sau khi nhận được đơn hàng bạn gửi chúng tôi sẽ liên hệ bằng cách gọi điện lại để xác nhận lại đơn hàng và địa chỉ của bạn.
Trân trọng cảm ơn.