Trong bối cảnh ngành xây dựng và logistics Việt Nam năm 2026 đòi hỏi sự chuyên môn hóa và hiệu quả vượt trội, việc tích hợp sức mạnh vận tải và khả năng bốc xếp vào một phương tiện duy nhất không còn là một lựa chọn, mà là một yêu cầu tất yếu. Xe đầu kéo gắn cẩu gập Palfinger, đặc biệt là sự kết hợp giữa “vua đường trường” Scania G450 và “chuyên gia nâng hạ” Palfinger PK 26002, đã định nghĩa lại tiêu chuẩn về hiệu suất, an toàn và tính kinh tế, trở thành giải pháp toàn diện mà mọi doanh nghiệp đang tìm kiếm.
Minh Hải Auto tự hào giới thiệu siêu phẩm đầu kéo Scania G450 3 chân 450HP gắn cẩu Palfinger PK 26002 – một cỗ máy được thiết kế để chinh phục những thách thức vận hành khắc nghiệt nhất, từ việc kéo theo những rơ-mooc hàng chục tấn đến việc tự bốc dỡ các kiện hàng, kết cấu thép, hay vật liệu xây dựng nặng tại công trường.
Sự kết hợp giữa khung gầm Scania G450 6x2 từ Thụy Điển và hệ thống cẩu gập thủy lực PK 26002 từ Áo tạo nên một giải pháp vận tải tự hành hoàn hảo. Chiếc xe không chỉ là một phương tiện vận chuyển hàng hóa đường dài mạnh mẽ mà còn là một thiết bị nâng hạ linh hoạt ngay tại điểm giao nhận. Điều này giúp loại bỏ hoàn toàn sự phụ thuộc vào các xe cẩu thuê ngoài, giảm thiểu chi phí nhân công, tiết kiệm thời gian chờ đợi và tối ưu hóa vòng quay logistics cho doanh nghiệp.
![]()
Với cấu hình 3 chân và động cơ 450HP, Scania G450 đảm bảo khả năng kéo tải trọng lớn trên mọi địa hình, từ cao tốc bằng phẳng đến những cung đường đèo dốc. Trong khi đó, cẩu Palfinger PK 26002, với sức nâng tối đa gần 9 tấn và tầm vươn thủy lực hơn 21 mét, mang lại khả năng bốc xếp hàng hóa đa dạng, từ container nhỏ, máy móc công nghiệp đến các cấu kiện bê tông.
Để đưa ra quyết định đầu tư chính xác, việc nắm rõ thông số kỹ thuật là vô cùng quan trọng. Dưới đây là bảng thông số chi tiết của cả xe cơ sở và cẩu gập được Minh Hải Auto tổng hợp.
| Thông Số Xe Nền Scania G450 Euro 6 | |
|---|---|
| Công suất cực đại | 331 kW (450.03 HP) |
| Loại nhiên liệu | Diesel |
| Trọng lượng bản thân (sau lắp cẩu) | 13.200 kg |
| Tải trọng cho phép tham gia giao thông | 12.800 kg |
| Tổng tải trọng | 26.000 kg |
| Cấu hình trục | 6x2 (3 chân) |
| Chiều dài cơ sở | 3.200 mm |
| Hệ thống phanh | Phanh động cơ, ABS |
| Màu sắc | Xanh dương (hoặc tùy chọn) |
| Cabin | Cabin giường nằm, tiện nghi cao cấp |
| Kiểu hộp số | Số tự động (Scania Opticruise) |
| Tiêu chuẩn khí thải | Euro 6 (Cập nhật 2026) |
| Hệ thống treo | Treo khí nén (Bầu hơi) |
| Trang thiết bị đi kèm | Điều hòa, Cruise control, khóa vi sai, GPS, máy tính hành trình, sưởi cabin. |

| Thông Số Cẩu Gập Palfinger PK 26002 | |
|---|---|
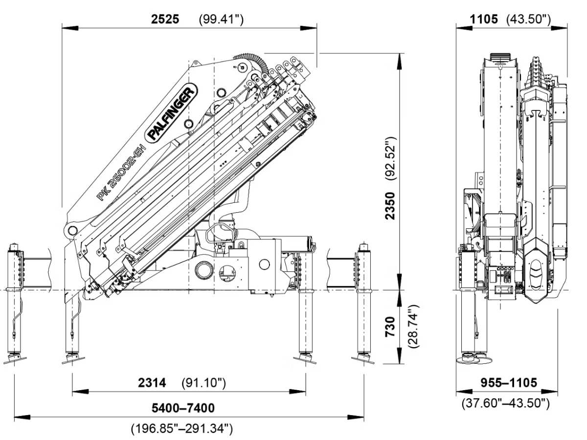
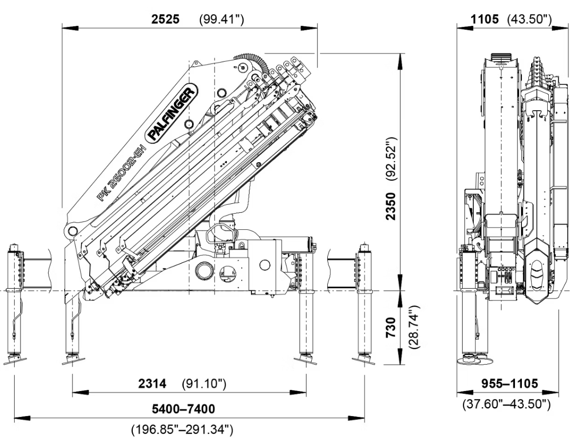
| Momen nâng tối đa | 24.9 mt |
| Sức nâng tối đa | 8.900 kg |
| Tầm vươn thủy lực tối đa | 21,3 m |
| Tầm vươn tối đa (kèm cần phụ JIB) | 27,2 m |
| Góc quay | 400° |
| Momen quay | 2.8 mt |
| Khẩu độ chân chống (tiêu chuẩn) | 5,0 m |
| Khoảng trống lắp đặt yêu cầu | 0,96 m |
| Áp suất làm việc tối đa | 350 bar |
| Trọng lượng bản thân cẩu | 2.583 kg |
Scania G450 không chỉ là một khung gầm, nó là một nền tảng công nghệ di động được thiết kế cho hiệu suất và sự bền bỉ. Mọi chi tiết từ động cơ đến cabin đều được tối ưu hóa cho các nhiệm vụ vận tải hạng nặng.
Trái tim của Scania G450 là khối động cơ 450 mã lực, đáp ứng tiêu chuẩn khí thải Euro 6 nghiêm ngặt, áp dụng tại Việt Nam từ năm 2026. Công nghệ phun nhiên liệu điện tử và hệ thống xử lý khí thải tiên tiến không chỉ giúp bảo vệ môi trường mà còn tối ưu hóa mức tiêu thụ diesel, giảm chi phí vận hành đáng kể trên mỗi kilomet. Động cơ này cung cấp mô-men xoắn cực đại ngay ở vòng tua thấp, đảm bảo sức kéo mạnh mẽ khi khởi hành và leo dốc.
![]()
Hộp số tự động thông minh Scania Opticruise tự động lựa chọn cấp số tối ưu dựa trên tải trọng và điều kiện địa hình, giúp tài xế tập trung hoàn toàn vào việc lái xe. Điều này không chỉ tăng cường an toàn mà còn giảm mài mòn hệ thống truyền động. Hệ thống treo khí nén (bầu hơi) mang lại sự êm ái vượt trội, bảo vệ hàng hóa giá trị cao và giảm mệt mỏi cho người lái. Nó cũng cho phép điều chỉnh độ cao gầm xe, thuận tiện khi kết nối với các loại rơ-mooc khác nhau. Đây là một trong những lý do khiến các doanh nghiệp ưu tiên so sánh với các dòng xe đầu kéo khác như phiên bản cẩu 10 tấn trên nền xe UD.
Palfinger PK 26002 là một trong những model cẩu gập hạng trung thành công nhất của Palfinger, nổi tiếng với tỷ lệ sức nâng trên trọng lượng ấn tượng và độ tin cậy tuyệt đối.
Với khả năng nâng tối đa 8.900 kg ở tầm gần và 750 kg ở tầm vươn xa nhất 21,3 mét, PK 26002 có thể xử lý hầu hết các loại hàng hóa thông thường trong xây dựng và công nghiệp. Biểu đồ tải chi tiết cho thấy sự linh hoạt của cẩu, cho phép người vận hành tính toán chính xác khả năng làm việc ở mọi vị trí, đảm bảo an toàn tuyệt đối. Khi cần, cẩu có thể được trang bị thêm cần phụ (JIB) để mở rộng tầm vươn lên tới 27,2 mét.

Thiết kế gập gọn sau cabin của cẩu Palfinger tối ưu hóa không gian, không ảnh hưởng đến khả năng kéo rơ-mooc. Hệ thống điều khiển từ xa bằng sóng radio cho phép người vận hành đứng ở vị trí quan sát tốt nhất, tăng độ chính xác và an toàn khi làm việc. Các công nghệ an toàn tiêu chuẩn như hệ thống HPSC (High Performance Stability Control) tự động giám sát sự ổn định của xe và giới hạn vùng làm việc của cẩu, ngăn ngừa nguy cơ lật xe. Đây là ưu điểm vượt trội khi so sánh với các dòng xe đầu kéo Hyundai và các giải pháp khác trên thị trường.
Sự đa năng của xe đầu kéo Scania G450 gắn cẩu Palfinger PK 26002 mở ra vô số ứng dụng trong nhiều lĩnh vực:

Đầu tư một tài sản lớn như xe đầu kéo gắn cẩu đòi hỏi một đối tác tin cậy, có năng lực kỹ thuật và cam kết đồng hành lâu dài. Minh Hải Auto không chỉ bán một sản phẩm, chúng tôi cung cấp một giải pháp toàn diện.
Chỉ có tại Minh Hải Auto, khi đầu tư xe đầu kéo Scania G450 gắn cẩu Palfinger, khách hàng được cung cấp miễn phí bộ hồ sơ thiết kế kỹ thuật hoàn chỉnh và bản vẽ mô phỏng vận hành 2D. Điều này đảm bảo phương tiện của bạn được Cục Đăng kiểm phê duyệt nhanh chóng và bạn có thể hình dung chính xác cách thức xe vận hành tại công trường, tối ưu hóa an toàn và hiệu suất ngay từ khâu lập kế hoạch.
Đừng để những thách thức về logistics làm chậm bước tiến của doanh nghiệp bạn. Hãy đầu tư vào giải pháp 2 trong 1 từ Scania, Palfinger và Minh Hải Auto để bứt phá trong năm 2026. Liên hệ ngay với chúng tôi để nhận báo giá chi tiết và tư vấn sâu hơn về giải pháp phù hợp nhất với nhu cầu của bạn.
Thủ tục nhanh gọn, lãi suất ưu đãi, hợp tác với nhiều ngân hàng lớn.
Chúng tôi hỗ trợ vận chuyển, bàn giao xe tận nơi cho khách hàng trên toàn lãnh thổ Việt Nam.
Bảo hành chính hãng cho cả xe và cẩu theo tiêu chuẩn của nhà sản xuất.
Giá của xe đầu kéo Scania G450 gắn cẩu Palfinger PK 26002 phụ thuộc vào nhiều yếu tố như cấu hình tùy chọn, các phụ kiện đi kèm và thời điểm đặt hàng. Do đây là sản phẩm giá trị cao, vui lòng liên hệ trực tiếp Minh Hải Auto qua hotline 033.204.6292 để nhận báo giá chính xác và cạnh tranh nhất năm 2026.
Thủ tục sẽ phức tạp nếu tự thực hiện. Tuy nhiên, khi mua xe tại Minh Hải Auto, chúng tôi sẽ hỗ trợ trọn gói từ khâu ra hồ sơ thiết kế, nộp hồ sơ Cục Đăng kiểm đến khi ra biển số và bàn giao xe. Khách hàng chỉ cần cung cấp các giấy tờ cần thiết, mọi việc còn lại chúng tôi sẽ lo.
Để vận hành xe, tài xế cần có bằng lái xe hạng FC. Ngoài ra, để vận hành cẩu an toàn và hiệu quả, người vận hành cần có chứng chỉ vận hành thiết bị nâng (chứng chỉ lái cẩu) do các đơn vị được cấp phép đào tạo.
Có. Chúng tôi có đội xe dịch vụ lưu động, sẵn sàng hỗ trợ khách hàng bảo dưỡng, sửa chữa tận công trường hoặc bãi xe trên toàn quốc, giúp giảm thiểu thời gian xe ngừng hoạt động và đảm bảo tiến độ công việc của bạn.
Giải pháp tích hợp 2 trong 1 giúp tiết kiệm chi phí nhiên liệu (chỉ 1 động cơ hoạt động), chi phí nhân công (chỉ cần 1 tài xế có chứng chỉ vận hành cẩu), chi phí thuê bãi, và đặc biệt là tiết kiệm thời gian chờ đợi phối hợp. Về lâu dài, đây là một khoản đầu tư mang lại hiệu quả kinh tế cao hơn nhiều so với việc thuê riêng lẻ.
Bước 1: Truy cập website và lựa chọn sản phẩm cần mua để mua hàng
Bước 2: Click và sản phẩm muốn mua, màn hình hiển thị ra pop up với các lựa chọn sau
Nếu bạn muốn tiếp tục mua hàng: Bấm vào phần tiếp tục mua hàng để lựa chọn thêm sản phẩm vào giỏ hàng
Nếu bạn muốn xem giỏ hàng để cập nhật sản phẩm: Bấm vào xem giỏ hàng
Nếu bạn muốn đặt hàng và thanh toán cho sản phẩm này vui lòng bấm vào: Đặt hàng và thanh toán
Bước 3: Lựa chọn thông tin tài khoản thanh toán
Nếu bạn đã có tài khoản vui lòng nhập thông tin tên đăng nhập là email và mật khẩu vào mục đã có tài khoản trên hệ thống
Nếu bạn chưa có tài khoản và muốn đăng ký tài khoản vui lòng điền các thông tin cá nhân để tiếp tục đăng ký tài khoản. Khi có tài khoản bạn sẽ dễ dàng theo dõi được đơn hàng của mình
Nếu bạn muốn mua hàng mà không cần tài khoản vui lòng nhấp chuột vào mục đặt hàng không cần tài khoản
Bước 4: Điền các thông tin của bạn để nhận đơn hàng, lựa chọn hình thức thanh toán và vận chuyển cho đơn hàng của mình
Bước 5: Xem lại thông tin đặt hàng, điền chú thích và gửi đơn hàng
Sau khi nhận được đơn hàng bạn gửi chúng tôi sẽ liên hệ bằng cách gọi điện lại để xác nhận lại đơn hàng và địa chỉ của bạn.
Trân trọng cảm ơn.